COL-PRIM-30 : Agréable 3 Pièces VUE MONTAGNE

3 pièces LE BIOT - Réf. COL-PRIM-30

Réserver vos vacances

Arrivée
Départ
Vacanciers
Réserver

Taxe de séjour et services annexes (linge de location, lit bébé, etc...) en supplément.


Environnement

Situation : Au calme
Exposition : Sud-Est
A proximité de
ABONDANCE : 10 km
ESF DE LA GRANDE TERCHE : 12 km
ESF MORZINE : 18 km
GARE SNCF THONON LES BAINS : 31 km
LAVERIE DE LA GRANDE TERCHE : 13 km
petite superette CARREFOUR EXPRESS : 8 km
PHARMACIE : 8 km
recharge voiture elec (ST jean d'aulps village : 9 km
télécabine du Pleney (Morzine) : 18 km
Télécabine ROC D'ENFER (ST JEAN D'AULPS) : 12 km


Description


3 pièces

1 chbre(s)

6 personne(s)

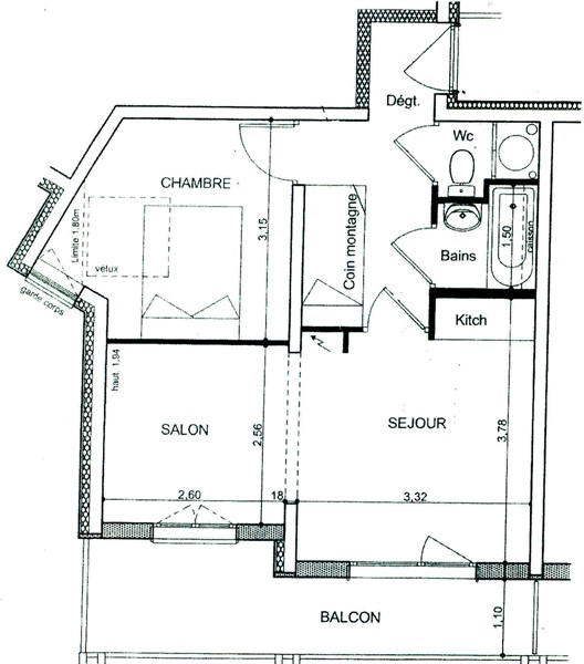
Appartement 3 pièces de 46 m² '(loi Carrez), situé au 4e étage d'une résidence avec ascenseur. Il offre :
- une entrée avec dégagement et un coin montagne avec des lits superposés (pour 2 personnes)
- un séjour / salon avec 1 canapé convertible (pour 2 personnes) avec un meuble pont à colonne pour rangement, TV, décodeur satellite HD
- un coin nuit pouvant être fermé par un rideau avec un BZ (pour 2 personnes) et un meuble pont à 2 colonnes
- un coin repas avec une table à rallonges, 5 chaises, 1 tabouret, 1 banc
- une kitchenette équipée : placards, grand réfrigérateur avec compartiment congélateur, combiné 4 plaques + four électrique, lave vaisselle, four à micro-ondes et lave linge
- une chambre mansardée avec un lit double, un meuble pont à deux colonnes
- salle de bain avec lavabo et baignoire
- WC indépendant
- balcon, casier à skis et place de parking extérieur
ATTENTION LES CLEFS SONT A PRENDRE A L'AGENCE DU COL DU CORBIER -4725 RTE DU COL - 74430 LE BIOT (même endroit pour les boites à clefs)
L'appartement est équipé en couvertures, vaisselle et ustensiles de cuisine.
Il ne comprend pas le linge de maison, ni le linge de lit.ANIMAUX NON ACCEPTES
Le ménage en fin de séjour est à la charge du locataire.
Au départ de nombreuses randonnées et à cheval entre la vallée d'Aulps et la vallée d'Abondance, le Col du Corbier bénéficie d'un ensoleillement exceptionnel.
L'hiver, la piste de luge et le tapis roulant couvert enchanteront petits et grands ! Le site est idéal pour les activités de luge, raquettes, ski de fond et ski de randonnée. L'accès aux domaines de ski des Portes du Soleil est à 15-20 minutes en voiture.


Conforts

1 lit double 140
2 lits simples supperposes
adapté aux familles
aspirateur
BALCON
cafetière à capsules (non fournies)
Chauffage
cintres
convertible 2 personnes
Cuisine
décodeur TNT HD
décodeur TNT HD
etendoir à linge
four à micro-ondes
four grill
grille pain
lave linge
lave vaisselle
plaques vitro-céramique
réfrigérateur combiné congélateur
radiateurs
radio
Télévision

Plus de photos