STUDIO cabine - A LOUER - ST JEAN D'AULPS BOUQ-17 : pied des pistes-

Studio Cabine ST JEAN D AULPS - Réf. TER-BOUQ-17

Réserver vos vacances

Arrivée
Départ
Vacanciers
Réserver

Taxe de séjour et services annexes (linge de location, lit bébé, etc...) en supplément.


Environnement

Situation : Au calme
Vue : Montagne et vallée


Description


Studio Cabine

4 personne(s)

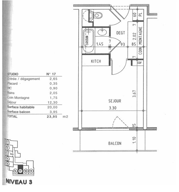
studio de 20 m² au 3ème étage (niveau de la passerelle) de la résidence le BOUQUETIN (avec ascenseur)
NON FUMEUR -ANIMAUX NON ADMIS
Situé au cœur de la station,
il est composé :
d'un hall d'entrée desservant : wc séparés -la salle d'eau (douche et vasque), un coin nuit avec 2 lits superposés A suivre la pièce de vie, avec sa petite cuisine équipée, avec frigo -micro-ondes- mini four- plaque vitro céramique. son espace séjour avec sa table pliante 3 chaises + 2 tabourets, le coin nuit quant à lui est équipé d'un grand canapé convertible BZ 160 x 200.
Cette pièce de vie donne sur un balcon, avec une table de jardin et 2 chaises
Casier à ski n°17 - au sous sol
pas de place de parking privée
LES CLEFS SONT A PRENDRE A L'AGENCE DE LA GRANDE TERCHE
2893 RTE DE LA MOUSSIERE D'EN HAUT-74430 ST JEAN D'AULPS- boite à clefs au même endroit

Les animaux ne sont pas admis-non fumeur

L'appartement est équipé de couettes, vaisselle et ustensiles de cuisine.
Il ne comprend pas le linge de maison, ni le linge de lit.
Le ménage en fin de séjour est à la charge du locataire.


Conforts

2 lits simples supperposes
Adapté aux familles
appareil à fondue et à raclette
aspirateur
BALCON
bouilloire électrique
cafetière à capsules (SENSEO non fournies)
canapé convertible BZ 2 pers 160 X 200
casier a ski - au sous sol
détecteur de fumée
frigo
grille pain
micro ondes
mini four
mixeur à soupe
plaques vitrocéramique
réfrigérateur
radiateurs
Télévision TNT SAT

Plus de photos